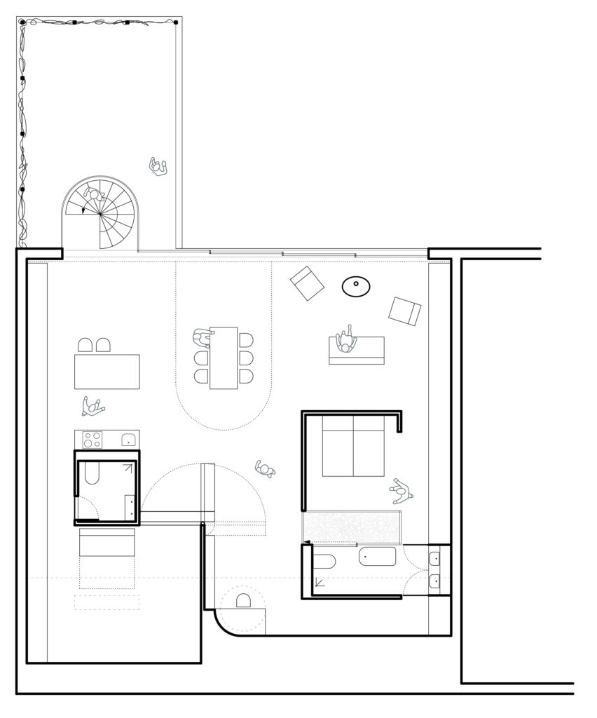
design _ ROOF TOP LOFTBy Alexander / March 9, 2015 Rooftop Conversion, Ferch, Germany, 2015. Private Commission